LS Architectes — Maisons de retraite

RÉHABILITATION ET EXTENSION en site occupé

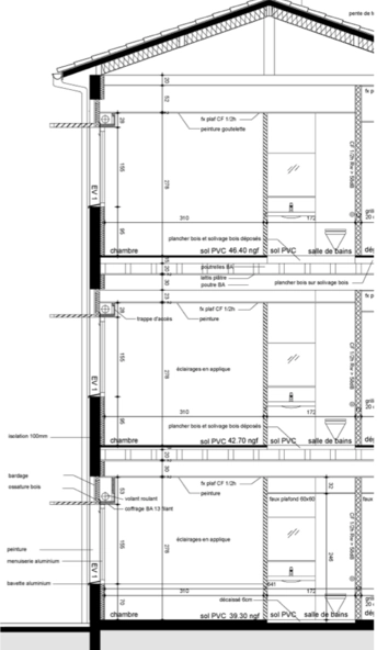
FOYER DE VIE - 45 LITS

Calendrier : livraison 2010

Lieu : Anglet (64)

Programme : Extension et restructuration d’un foyer de vie pour personnes handicapées de 45 chambres à Anglet.

Mission : base

Surface : 2 953 m2

Coût : 3,09 M€ HT

Maître d’ouvrage : Foyer François de Paule

Maître d’ouvrage délégué : Office 64 de l’Habitat

Maîtrise d’œuvre : LS architectes associés, mandataire ; Bernadberoy bet structure ; Bio Fluides Concept, bet fluides 

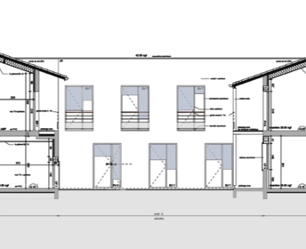
Vue extérieur